配線配管
よく使う配線の種類について
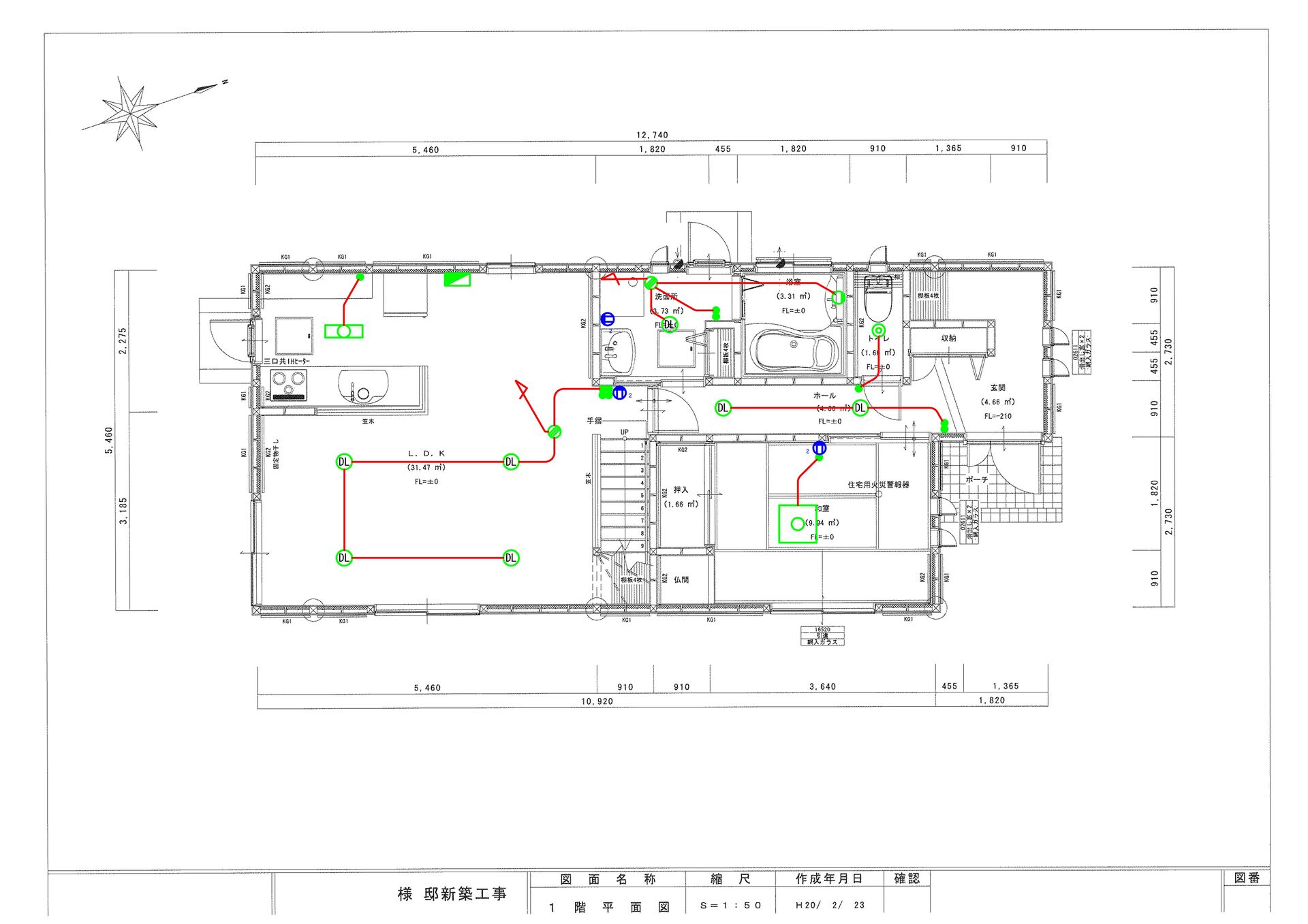
CADソフトで簡単に配線を描こう!
Check!
まずはそれぞれの特徴を説明致します。
よく使う配線の種類5選!

配線の種類

  • STEP

    01

    VVF

    (正式名称:600Vビニル絶縁ビニルシースケーブル平形)


     

    一般住宅などの屋内配線用として最も使用されている配線です。

    (※電線管を使用すれば屋外でも可能)

    配線の形状は平たいです。

    この平たい形状の方が作業がしやすいため、よく使われています。

    耐寒性に優れています。

     

     

     

  • STEP

    02

    IV

    (正式名称: 600Vビニル絶縁電線)


     

    屋内専用のビニル絶縁電線です。

    銅線をポリ塩化ビニルで覆った構造をしています。

    IV線の最高許容温度は60℃です。

    配線の色によって識別できるようになっています。

     

     

    <配線の色>

    線の色

    使い方
    黒・赤 電源線
    中性線

    接地線(アース)

    黄・青

    盤内配線の制御用

     

  • STEP

    03

    HIV

    (正式名称:600V二種ビニル絶縁電線)


     

    HIVはIVよりも耐熱性が高く、最高許容温度は75℃です。

    分電盤の盤内配線としてよく利用されています。

    周囲の温度が高くでも送電が可能なため、とても安全性が高いです。

     

     

     

     

  • STEP

    04

    VVR

    (正式名称:600Vビニル絶縁ビニルシースケーブル丸形)


     

    一般住宅だけでなく、商業施設や公共施設などの屋内配線用として、幅広く使用されています。

    基本的な構造はVVFと同じですが、丸い形状をしているのが特徴です。

    こちらもVVFと同様、耐寒性に優れています。

     

     

     

  • STEP

    05

    CV

    (正式名称:架橋ポリエチレン絶縁ビニルシースケーブル)


     

    電力用のケーブルとして広く普及しています。

    導体の周りを架橋ポリエチレンで覆い、さらにその上を銅テープやビニルシースなどで覆った構造です。

    さまざまな規模の建物で使用されており、屋外の配線にも対応しているのが特徴です。

お気軽にお電話でご連絡ください
052-459-5505 052-459-5505
8:00~21:00
CADで簡単配線!

多数機能搭載しておりとても便利なCADソフトです。

さまざまな配線スタイルと配線の種類

 

JS楽打CADではさまざまな配線スタイルがあります。

さらに、先程ご紹介した5つの配線の種類だけでなく、その他の配線も対応しています。

 

その他、配線の幅や線管やシンボルで切断した配線など豊富な機能が搭載されています。

 

 

 

さまざまな配線の作画

 

配線配管の種類や条数、アースなどが簡単に設定することができます。

 

さらに、特記や注記などの作画もできるためとても便利です。

 

ボタンを有効(オレンジ)にするだけで簡単に作画されます。

 

 

 

お気軽にお電話でご連絡ください
052-459-5505 052-459-5505
8:00~21:00
おすすめのCADソフトのご紹介

電気設備CAD電気工事見積ソフト

JS楽打が選ばれる

3つの理由

  • REASON
    01

    CADが苦手な人にも・得意な人にも

    汎用機能と専用機能が充実で使いやすい

    作画はキーボード要らず

    図面を極力マウスのみの操作で描くことができるシステムで、パソコンが苦手な方にも安心してお使いいただけます。

    CAD初心者の方にもわかりやすいメニューボタンや操作性を備えた半面、JWに慣れた方にも満足いただける専用機能も充実しており、どなたにとっても使いやすい製品となっています。

    cad1
  • REASON
    02

    図面と見積りの連動ソフトだからできる

    図面からの自動集計で簡単見積り作成

    クリックひとつで自動集計

    JS楽打CAD電気工事会社様の目線で作られた豊富なシンボルや機能を搭載し、作画した電気シンボル・配線をクリックひとつで自動計算することができます。

    請求書や材料集計表等の作成も可能で、あっという間に各種書類が完成します。

    mitu2
  • REASON
    03

    図面の作成やデータ編集も簡単操作

    ベクターPDFの読込・書出に対応

    紙データのスキャナー取り込みもできます

    設計が簡単にできるJS楽打CADは各種CADデータの読み込み・書き出しに対応しています。DXFやDWGはもちろんのこと、PDFもベクターデータであればCADに一発変換して編集することが可能です。

    また、紙データの場合でもスキャナー取り込みで画像補正・画像編集が可能なため、メールやFAXでもらったデータを存分に活用することができます。

    cad2

お気軽にこちらからお問い合わせください。

Contact

お問い合わせ

RELATED

関連記事