拾い出しとは
図面の拾い出しとは、建設工事に必要となる材料や人員を設計図をもとに算出する作業です。積算の一部であり、工事費用を算出する際の計算式の内、数量を求めるために行われます。
複数枚の設計図を確認しながら行う地道な作業ですが、工事費用に大きく関係することから、高い専門性が求められる作業でもあります。
拾い出しの基準
図面の拾い出し作業は、民間の場合は特にルールがありません。
しかし、国や地方自治体の公共物件を建造する場合は、国が定めている算定基準に従って積算しなくてはなりません。
その際の基準は以下の通りになります。
・公共建築数量積算基準
・公共建築工事積算基準等資料
・建築工事標準歩掛り
・電気設備工事標準歩掛り
・機械設備工事標準歩掛り
・建築工事積算基準
・建築工事共通費積算基準
・建築工事数量積算基準
・建築設備数量積算基準
・公共建築工事標準単価積算基準
拾い集計を効率的に行い方に役立つソフトがございます。
JS楽打が選ばれる
3つの理由
-
REASON01
CADが苦手な人にも・得意な人にも
汎用機能と専用機能が充実で使いやすい
作画はキーボード要らず
図面を極力マウスのみの操作で描くことができるシステムで、パソコンが苦手な方にも安心してお使いいただけます。
CAD初心者の方にもわかりやすいメニューボタンや操作性を備えた半面、JWに慣れた方にも満足いただける専用機能も充実しており、どなたにとっても使いやすい製品となっています。
-
REASON02
図面と見積りの連動ソフトだからできる
図面からの自動集計で簡単見積り作成
クリックひとつで自動集計
-
REASON03
図面の作成やデータ編集も簡単操作
ベクターPDFの読込・書出に対応
紙データのスキャナー取り込みもできます
お問い合わせはこちらから
Contact
お問い合わせ
RELATED
関連記事
-
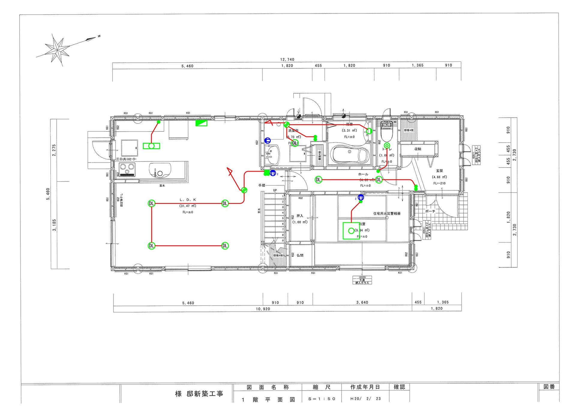
防災図面の作成にはJS楽打CADがおすすめです。あらかじめ登録されている火災警報シンボルを配置して配線を結ぶだけの簡単操作で、あっという間に図面から見積まで完成します。ぜひ一度ご覧ください。2020.05.26防災図面の作成・拾い出しに対応
-
JWCADは無料で使える優秀な2次元CADですが、設備業の実務では「もう少し機能があれば」と感じる場面も少なくありません。本記事ではJWCADに足りない代表的な機能と、その解決策についてわかりやすく解説します。2025.09.18JWCADに“足りない機能”とその解決策
-
水道工事の図面作成には、見積りとズレを生む“落とし穴”が潜んでいます。本記事ではよくある5つの失敗と、実際に損失につながった事例、さらにCAD連携で解決した成功例を紹介。図面精度と見積精度を高めるヒントを解説します。2025.09.25水道工事の図面作成で見落としがちな5つの落とし穴|図面と見積がズレる理由とは?
-
電気配線図を正確に描くには、基本ルールと作図のコツを理解することが重要です。この記事では、コンセント・スイッチ・照明などの配置方法から、誤配線を防ぐためのポイント、作業効率を上げるCAD活用術までを詳しく解説します。2025.11.03電気配線図を正確に描くための基本とコツ
-
ガス配管図は施工品質・安全性・見積精度に直結する重要な図面です。本記事では「基本と実務で役立つコツ」を整理し、図面作成を効率化するヒントをご紹介。最後に、配管図作成を大幅に効率化できるガス専用CAD・見積ソフトのご案内もいたします。2025.09.05ガス配管図の“基本とコツ”を徹底解説!
-
図面が苦手な工事店ほど、実はCADソフト導入の効果は大きいのをご存じですか?現場出身者だからこそわかる「施工品質」「見積精度」「業務効率」の変化をわかりやすく解説。図面作成に悩んでいる方へ改善のヒントをお届けします。2025.09.08図面が苦手な工事店こそ、CADソフト導入で劇的に変わる理由
-
電気工事の見積書を作成する際は、1つの見積書に全ての項目を記載するのではなく、工事の種類ごとにぺージを分けて作成する方法が一般的とされています。 そこで今回は見積書や内訳書に記載する項目について解説してこうと思っているので、ぜひご覧ください。2023.03.22見積書の分類って何があるの?
-
電気専用ソフトならPDFや紙図面を簡単にCADに取り込んで編集することが可能です。その上に登録済みの電気シンボルと配線を配置するだけであっという間に図面が完成するため、図面の作成時間を大幅に短縮することができます。2020.02.18PDFや紙図面の取り込みが可能
-
「見積金額」と「実行予算」、その違いをきちんと説明できますか?設備業の利益を守るために欠かせない“積算の基本”をわかりやすく解説。図面・見積担当者、経営者どちらにも役立つ内容です。知らずに損していた…とならないために、今こそチェックしておきましょう!2025.08.29『見積金額』と『実行予算』の違いとは?
-
CADソフトでは簡単にグリッドの設定や通り芯の作図が可能です。グリッドと通り芯の違いや活用方法だけでなく、壁や柱コマンドの機能も合わせてご紹介致します。簡単な操作で便利な機能がたくさん搭載されているため、ぜひ一度ご覧ください。2022.10.07グリッドと通り芯の活用
-
電気工事を行うにあたって必要な資格やその種類についてまとめました。その中でもとくに重要となる"電気工事士"について詳しく解説しています。資格を取ろうとしている方や電気工事士にご興味のある方は、ぜひご覧ください。2023.03.15電気工事に必要な資格とは?
-
ガス配管図を作成できる専用CADソフトなら、平面図から自動でアイソメ図(立面図)を作成できます。各ガス会社ごとの必要な書類もあらかじめ登録されているため、必要な書類を選んで印刷するだけ。各種書類や見積書も簡単に作成することが可能です。2020.04.09ガス配管図面を簡単につくるなら
-
積算と見積の違いについて解説しています。この二つの言葉は似ているため違いがわからなかったり、なんとなく知っている状態の人も多いかと思われます。そんな用語を定義や使い分けに重点を置いて説明しますので、ぜひご覧ください。2022.09.21「積算」と「見積」の違いって?
-
都市ガスとプロパンガスの違いについて解説しています。引っ越し等でガスについて見直したい方にはもちろん、単純にガスについて興味がある方にとってもわかりやすくまとめていますので、ぜひご覧ください。2022.11.01都市ガスとプロパンガスの違いって?
-
みなさまはガス―メーターについて詳しくご存知でしょうか?名前は知っていても、その種類や仕組みを詳しく知らない方もいらっしゃると思います。そのため、今回はガスメーターについての基本的な説明を致します。さらには配管図面を簡単に作成することができるCADソフトもご紹介しておりますので、ぜひ一度ご覧ください。2022.11.08ガスメーターとは?基本知識を学ぼう!