水道工事の施工方法

水道について

水道工事は、日常生活に無くてはならない重要なインフラ設備を構築する工事の一つです。

そこで今回は下水道工事の施工方法や流れについて解説していきます。

 

水道工事の概要やメリットについて知りたい方は【下水道工事とは?】をご覧ください。

お気軽にお電話でご連絡ください
052-459-5505 052-459-5505
8:00~21:00
Check!
水道工事の主な施工方法は3種類あります。
Point
1

開削工法

開削工法とは機械や人力により地表面から直接道路を掘削し、下水管を布設する方法です。

 

【工事方法】

道路の舗装を撤去し、機械や人力により下水管を布設する深さまで掘削します。

その後下水管を布設し、埋戻し作業する工事手順を開削工法と言います。

Point
2

推進工法

推進工法とは、地中の掘進機と推進管を油圧ジャッキで押し進めることで管きょを埋設する方法です。

 

【工事方法】

推進深さまで掘った発進立坑と到達立坑を準備します。

掘進機がスタートしたら約2mずつに分割されたコンクリート管を吊り下ろして、後ろに連結して、発進立坑内のジャッキでまるごと押していきます。

Point
3

シールド工法

掘進機を油圧ジャッキで直接前進させて、掘られたトンネル内で、前方からセグメントと呼ばれる壁枠を組み立てていく方法です。

 

【工事方法】

推進深さまで掘った発進立坑と到達立坑を準備します。シールドマシンが掘ったスペースまで吊り下ろしたセグメントを運搬して構築していきます

お気軽にお電話でご連絡ください
052-459-5505 052-459-5505
8:00~21:00

水道工事の流れ

  • STEP

    01

    現地調査・設計、家屋調査

    レーダー探査などを行い、地下埋設物(水道管・ガス管・通信管など)の有無を確認します。

    その調査結果を基準に、下水道管の埋設位置・工事方法を決定し、施工図面を作成します。

  • STEP

    02

    説明会やお知らせ文の配布

    工事業者が決まったら、下水道工事沿道の住民に対して工事内容の説明会やお知らせ文の配布を行い、周知徹底を図ります。

  • STEP

    03

    工事着手

    地下埋設物(水道管・ガス管・通信管など)がある場合、それらの仮設や防護・移設などを行い、公共汚水桝を設置する場合は、事前に設置申請証を提出し、桝の設置個所を確認します。

  • STEP

    04

    完了検査

    仮設や防護・移設した地下埋設物などを元の状態に復旧します。

  • STEP

    05

    供用開始

    完了検査を無事に通過すると正式に下水道工事の完成となり、下水道法第9条に規定される「共用開始の告示」を行います。

  • STEP

    06

    排水設備接続工事

    排水設備は、住宅や事業所などの敷地内に設置する排水管や桝などのことです。

お気軽にお電話でご連絡ください
052-459-5505 052-459-5505
8:00~21:00

水道工事を行う方に役立つソフトがございます

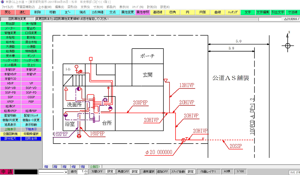
水道申請図面を作成する専門CADソフトです。

平面図から自動で立面図を作成します。各市町村の指針に沿った表記、使用材料の集計や申請書類のデータに至るまで対応します。

水理計算書の作成も行えます。

水道申請図面を作成する専門CADソフトです。

平面図から自動で立面図、縦断図を作成します。各市町村の指針に沿った表記、使用材料の集計や申請書類のデータに至るまで対応します。

申請くんfが選ばれる

3つの理由

  • REASON
    01

    給水配管図も自動で

    市町村毎の線の色やマークは設定済

    申請くんf」は自動で配管ルートや立面図、縦断図などを作成する機能がございます。

    そのため今までCADを触った事がない方、パソコンが苦手な方でも簡単に図面が描ける様なソフトになっています。

     

    a_p3_1
  • REASON
    02

    申請業務が初めてでも安心

    誰でも早く簡単に

    申請地区を選択するだけで、各市町村の指針にそった図面や書類が作成できます。

    その他にも担当者別、年度別、請負会社別など、物件を分けて作成できる為、物件管理が簡単という特徴もあります。

    suido3b
  • REASON
    03

    安心のサポート体制

    電話・遠隔サポートがございます

    導入後は安心してソフトをお使いいただけるよう、遠隔での導入講習を行っています。その他にも、使っていく中でわからない点やお困りごとが出てきましたら、電話・遠隔サポートでしっかりとフォローいたします。

    また、お電話での遠隔サポートは営業時間内であれば何度でもご利用いただくことができるため、お困りごとがあればすぐに対応いたします。

    caa074b56be8959697cb5eac71b0a890_s

お問い合わせはこちらから

Contact

お問い合わせ

RELATED

関連記事