指定給排水装置工事事業者ってどんな人?
資料請求はこちらから

Question

水道修理業者選びで失敗しない方法の一つとして「指定給排水装置工事事業者」を選ぶことが大切だと言われています。
しかし、いったいどういう事業者を指すのか分からないという方も多いのではないでしょうか。

そこで今回は指定給排水装置工事事業者とは何なのか、依頼するメリットは何があるかを説明していきたいと思います。

お気軽にお電話でご連絡ください
052-459-5505 052-459-5505
8:00~21:00
指定給排水装置工事事業者とは?

「指定給排水装置工事事業者」とは厚生労働省がまとめている水道法の第16条の2第1項「指定給水装置工事事業者制度」に定められているもので、水道工事が適正に施工できることを、認められた事業者のことを言います。

 

正式名称は指定給排水装置工事事業者ですが、指定事業者や指定工事店と呼ばれることが多いです。

お気軽にお電話でご連絡ください
052-459-5505 052-459-5505
8:00~21:00

水道法とは

1957年に成立し、2018年に水道民営化のため改正されました。

清潔な水を安価にたくさん届けられるよう、日本全国の水道を整備することを目的とした法律です。

指定を取るためには

必要なもの一覧(市によって異なります)
  • 1. 厚生労働省令で定める工具類を持っているかの確認
  • 2. 申請書の提出
  • 3. 給水装置工事主任技術者が1つの事業所に1人以上いるか
  • 4. 手数料の納付

 

 

 

お気軽にお電話でご連絡ください
052-459-5505 052-459-5505
8:00~21:00
依頼する

メリット

  • 配管を伴う工事が可能

    指定を取っていない工事業者ができない修理も行うことができます。

  • 適正価格

    自治体から指定を取っているため、価格に対して安心感をもって依頼できます。

  • 技術力

    指定給排水装置工事事業者は膨大な知識と高い技術力があります。

お気軽にお電話でご連絡ください
052-459-5505 052-459-5505
8:00~21:00

指定給排水装置工事事業者を探す方法

  • STEP

    01

    自治体のホームページ一覧から探す

    各自治体の水道局のホームページでは、指定給排水装置工事事業者の一覧を公開しています。
    こちらに記載がある事業者は、すべて指定工事事業者です。

    自治体の形式によっては住所や連絡先なども公開しているため、水道修理業者選びに役立ちます。

  • STEP

    02

    水道業者の情報をリサーチ

    気になる水道業者をインターネット等で検索し、ホームページにたどり着きます。

    そこに「指定給排水装置工事事業者」という記載があるかどうかを確認するのもひとつの手です。

お気軽にお電話でご連絡ください
052-459-5505 052-459-5505
8:00~21:00

指定給水装置工事事業者さんに向けた 役立つソフトがあります

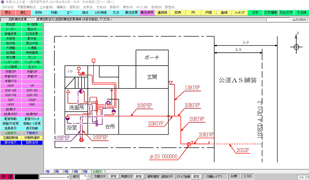
水道申請図面を作成する専門CADソフトです。

平面図から自動で立面図を作成します。各市町村の指針に沿った表記、使用材料の集計や申請書類のデータに至るまで対応します。

水理計算書の作成も行えます。

水道申請図面を作成する専門CADソフトです。

平面図から自動で立面図、縦断図を作成します。各市町村の指針に沿った表記、使用材料の集計や申請書類のデータに至るまで対応します。

申請くんfが選ばれる

3つの理由

  • REASON
    01

    給水配管図も自動で

    市町村毎の線の色やマークは設定済

    申請くんf」は自動で配管ルートや立面図、縦断図などを作成する機能がございます。

    そのため今までCADを触った事がない方、パソコンが苦手な方でも簡単に図面が描ける様なソフトになっています。

     

    a_p3_1
  • REASON
    02

    申請業務が初めてでも安心

    誰でも早く簡単に

    申請地区を選択するだけで、各市町村の指針にそった図面や書類が作成できます。

    その他にも担当者別、年度別、請負会社別など、物件を分けて作成できる為、物件管理が簡単という特徴もあります。

    suido3b
  • REASON
    03

    安心のサポート体制

    電話・遠隔サポートがございます

    導入後は安心してソフトをお使いいただけるよう、遠隔での導入講習を行っています。その他にも、使っていく中でわからない点やお困りごとが出てきましたら、電話・遠隔サポートでしっかりとフォローいたします。

    また、お電話での遠隔サポートは営業時間内であれば何度でもご利用いただくことができるため、お困りごとがあればすぐに対応いたします。

    caa074b56be8959697cb5eac71b0a890_s

お問い合わせは こちらから

Contact

お問い合わせ

RELATED

関連記事