三角スケールの使い方
資料請求はこちらから

START

日常生活ではあまり馴染みのない三角スケールですが、実は図面作成で大変役立つ代物となっています。

そこで今回は、これから図面を描きたい方に向けて三角スケールの使い方について解説していきます。

お気軽にお電話でご連絡ください
052-459-5505 052-459-5505
8:00~21:00
三角スケールって?

三角スケールとは、それぞれの縮尺率により実際の距離が分かる定規のことです。

 

見た目は三角柱の形をしており、図面を扱う仕事をする人たちの間では、「サンスケ」と呼ばれることが多いです。

お気軽にお電話でご連絡ください
052-459-5505 052-459-5505
8:00~21:00
Check!
使い方の前に!
まずは縮尺について解説します。
Point
1

そもそも縮尺とは?

実際の図面は、現地の大きさに比べて縮小されて作図されます。現地の大きさそのままで作図すると、膨大な量の用紙が必要となるからです。

そのため、図面に対して現実の大きさより、サイズを小さくして図面に情報を書き込みます。

この小さくする割合を縮尺と言います。

 

例えば、1/100というのは、実際の大きさ100の1にした大きさが図面に描かれているということになります。

Point
2

図面の縮尺

図面の縮尺は、

S=1/〇〇

縮尺=1/〇〇

の2種類で表記されます。

 

建築図面の場合の縮尺は、キリの良い数字を使うため1/100や1/50などが使用されます。

Point
3

縮尺の計算式

①縮尺図面から実際の長さを計算する方法

実際の距離=図面上の距離÷縮尺の倍率

 

②図面の縮尺を変更したいときの計算方法

縮尺の換算率=縮尺後の倍率÷縮尺前の倍率 

お気軽にお電話でご連絡ください
052-459-5505 052-459-5505
8:00~21:00

縮尺と尺度の違い

縮尺と尺度は意味が異なります。

 

縮尺:実寸大の大きさに対して、実寸大の大きさを縮小して表示した大きさの比率

尺度:対象物の実際の長さに対する、図面に示した対象物の長さ寸法の比

 

ちなみに、「実寸大の大きさに対して、実寸大の大きさを拡大して表示した大きさの比率」は倍尺と呼ばれます。

お気軽にお電話でご連絡ください
052-459-5505 052-459-5505
8:00~21:00
図面を描くときの尺度について

尺度に決まりはありませんが、推奨される尺度がJISで決められています。その尺度で描かれていると、大きな労力を使うことなく図面を読むことが可能です。

 

【推奨尺度一覧】

500:1 200:1 100:1 50:1 20:1 10:1 5:1 2:1

1:1 1:2 1:5 1:10 1:20 1:50 1:100 1:200 1:500

 

また、推奨尺度だと大きすぎたりしてしまう場合は、中間尺度を使用することが推奨されております。

 

【中間尺度】

50√2 : 1 25√2 : 1 10√2 : 1 5√2 : 1 5√2 : 1 5√2 : 1 1 : √2 1 : 2√2 1 : 5√2 1 : 10√2 1 : 10√2 1 : 50√2 1 : 100√2 1 : 200√2 1 : 500√2 1 : 1000√2 1 : 2000√2 1 : 5000√2

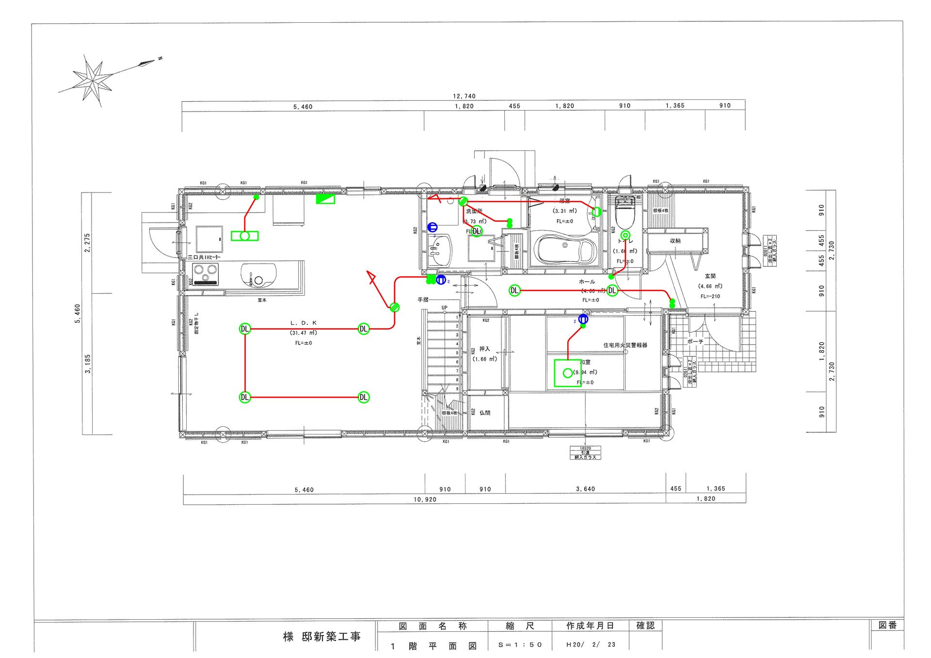
三角スケールの使い方

  • STEP

    01

    まずは、図面の縮尺を確認します。

  • STEP

    02

    三角スケールは、三角形の三つの角の両面にそれぞれ縮尺を変えてメモリが打ってあります。

    その中から、図面と対応する縮尺を探しましょう。

  • STEP

    03

    正確な数値が測れるように、図面を平らな机の上などに置きます。

  • STEP

    04

    2で用意した三角スケールの0目盛りを測りたい寸法値の左端に合わせて数字を読み取ります。

お気軽にお電話でご連絡ください
052-459-5505 052-459-5505
8:00~21:00

三角スケールより便利なCAD

CADがあれば、三角スケールで計測する必要がありません。JS楽打というソフトなら、配線の長さを計測した後、それを見積書に反映させることが可能です。

 

JS楽打で一から建築図を作成する方法は、【建築図面の書き方】をご覧ください。

その他JS楽打には便利な機能がたくさんあります

JS楽打が選ばれる

3つの理由

  • REASON
    01

    CADが苦手な人にも・得意な人にも

    汎用機能と専用機能が充実で使いやすい

    作画はキーボード要らず

    図面を極力マウスのみの操作で描くことができるシステムで、パソコンが苦手な方にも安心してお使いいただけます。

    CAD初心者の方にもわかりやすいメニューボタンや操作性を備えた半面、JWに慣れた方にも満足いただける専用機能も充実しており、どなたにとっても使いやすい製品となっています。

    cad1
  • REASON
    02

    図面と見積りの連動ソフトだからできる

    図面からの自動集計で簡単見積り作成

    クリックひとつで自動集計

    JS楽打CAD電気工事会社様の目線で作られた豊富なシンボルや機能を搭載し、作画した電気シンボル・配線をクリックひとつで自動計算することができます。

    請求書や材料集計表等の作成も可能で、あっという間に各種書類が完成します。

    mitu2
  • REASON
    03

    図面の作成やデータ編集も簡単操作

    ベクターPDFの読込・書出に対応

    紙データのスキャナー取り込みもできます

    設計が簡単にできるJS楽打CADは各種CADデータの読み込み・書き出しに対応しています。DXFやDWGはもちろんのこと、PDFもベクターデータであればCADに一発変換して編集することが可能です。

    また、紙データの場合でもスキャナー取り込みで画像補正・画像編集が可能なため、メールやFAXでもらったデータを存分に活用することができます。

    cad2

お問い合わせはこちらから

Contact

お問い合わせ